-
-
August 8, 2017 at 7:04 am #141526
Lukas -> www.szymtech.plParticipantHI RICHIE,
can You post an picture that shows this problem ?
BR
Lukas -
August 8, 2017 at 7:27 am #141544
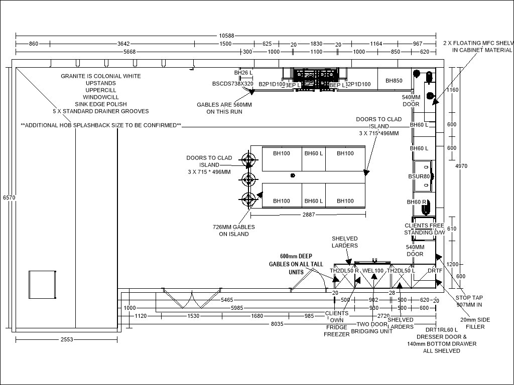
Lukas -> www.szymtech.plParticipantYou mean those on island side ?
-
August 8, 2017 at 8:22 am #141546
Lukas -> www.szymtech.plParticipant -
August 9, 2017 at 5:53 am #141712
Lukas -> www.szymtech.plParticipantYep You’re right,
I think You may edit the CAT by yourself using CE.exe (Cat Editor)
or You can wait for 2020 update …
You must be logged in to reply to this topic.




