-
-
July 2, 2018 at 11:59 am #193105
Tyler Kehl
ParticipantI came across a set of plans that appears to have been created in 2020. There are five things on these plans that I have never seen before and would like to know how this designer accomplished this.
1. The page labeled “Molding Details” and shows the installer exactly how to install the moldings for the project. I’ve never seen this before and would like to know how they made this sheet.
2. The page labeled “Hardware Details” shows the exact placement of the hardware handles to the doors and drawer fronts. This is another thing I’ve never seen before and would like to know how it was done.
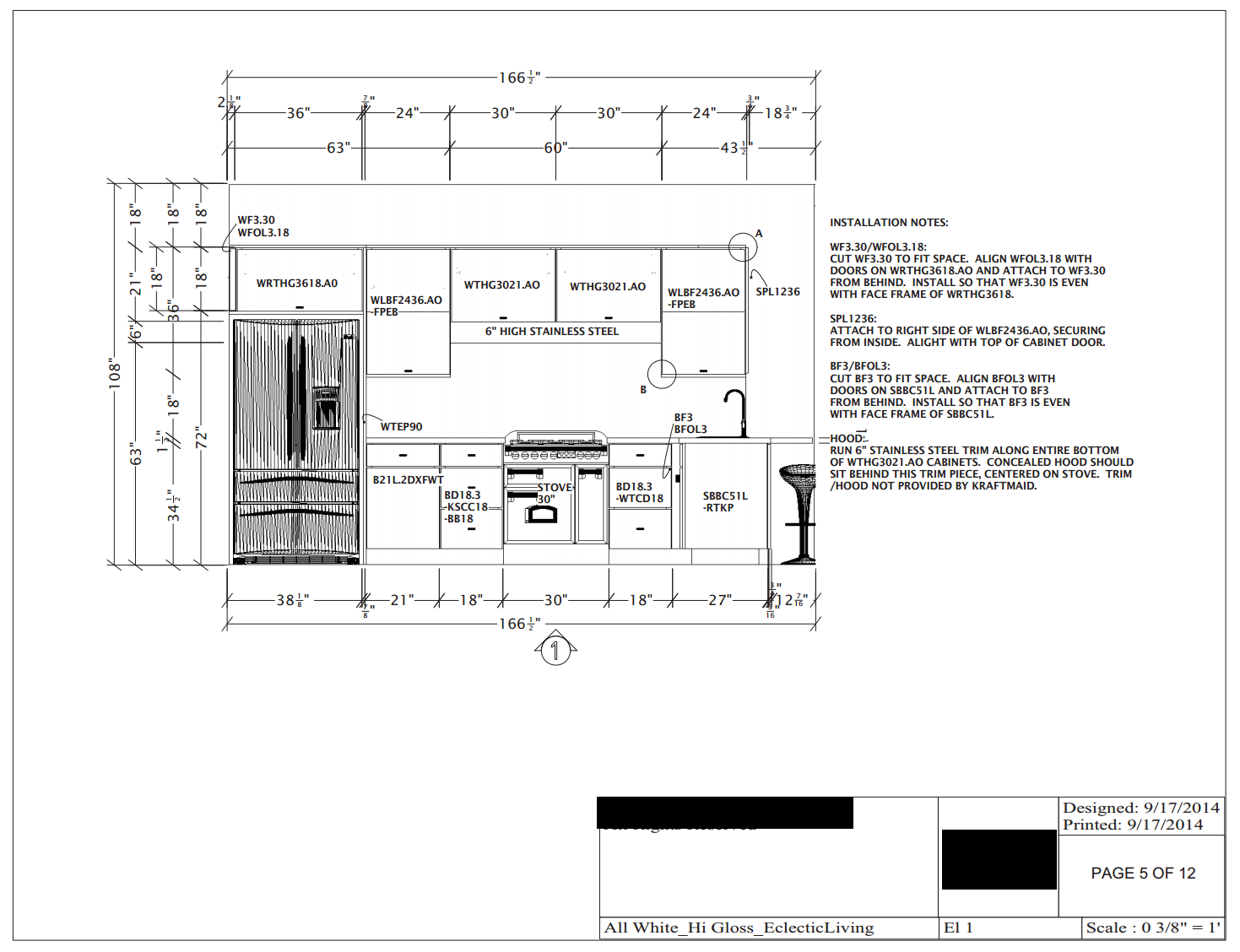
3. The birds eye view of the plans shows lettering in front of each cabinet run – A, B, C, etc. The front elevations show the corresponding letter. Is this automated or did this person insert these characters individually?
4. These plans show a scale in the bottom right hand corner, but all my plans say “no scale”. How would I incorporate a scale into my drawings?
5. In the box above the file path name on the bottom right of the page, this designer has their company name along with a copyright notice (which I have blacked out to protect the company). I went through the settings and don’t see a method of changing this. My printouts currently give a disclaimer about dimensions needing to be verified.
-
July 2, 2018 at 7:43 pm #193146
Mike LangensiepenPilot ProDefinitely looks like 2020 Design!
1. This looks like they have used the drawing tools to create this. Simple enough to create the shapes you want and to group them and then save the .KIT file so you can copy and paste them whenever you want. Several of my designers have built up extensive libraries of hand drawn examples like this along with lots of standard paragraphs to cut and paste in.
2. I would say is done in the same way as 1.
3. This has been done individually. See the post here: https://www.2020spaces.com/forums/topic/elevation-symbol/ for the symbol and how to customise it.
4. No idea re scale. We never use it.
5. You can customise the wording, change the logo etc. Info here
https://www.dropbox.com/s/p9s5jvzq8fbu5jp/20-20%20Print%20Customisation.pdf?dl=0
The guide was written for V9 so the path you want for the files is actually c:\ProgramData\20-20 Technologies\Config\ and you may have to make hidden directories visible to find it. Make sure you stick to the 40 characters per line rule. Use notepad to edit the text files.
Hope this helps.
-
July 2, 2018 at 9:25 pm #193149
Mike LangensiepenPilot Pro -
July 23, 2018 at 2:10 pm #195828
James Toews
Participantyou can change the scale when you print. File > Print > Print Scale on top right corner > Fit to page or Ratio. You can use print preview to make sure the ratio fits your page.
-
You must be logged in to reply to this topic.




